End Plate Joint Design (JavaScript)
Author: Win Aung Cho15-Mar-2022 10:14:10 AM*
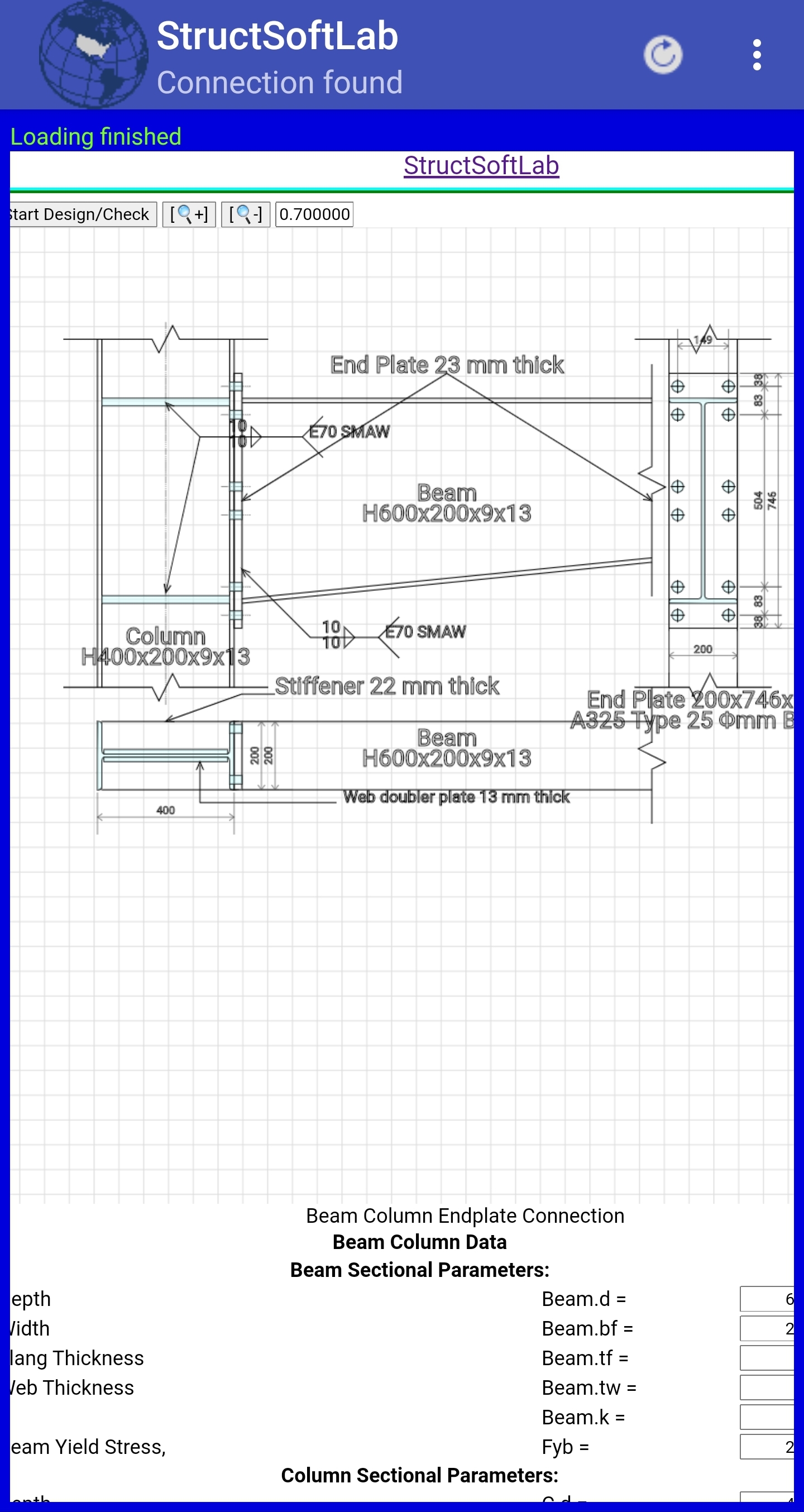
Stiffened field bolted single end plate beam to column connection design
{Javascript program + html}
Source code is hosted on Github.
Source for CAD Drawing
{Javascript program + html}
Source code is hosted on Github.
Source for CAD Drawing
Beam-Column End plate design
Test example there.
Demo Page
Reference to
AISC Steel Design Guide by Thomas M. Murray, PhD, P.E.,
CAD/CAE
ComputationalEngineering
Original Post
Demo Page
Reference to
AISC Steel Design Guide by Thomas M. Murray, PhD, P.E.,
CAD/CAE
ComputationalEngineering
Original Post
Author: Win Aung Cho
15-Mar-2022 10:14:10 AM*